外脚手架及外架防护棚搭设标准化做法_行业动态_新闻动态-铭筑科技

外脚手架及外架防护棚搭设标准化做法

来源:福建铭筑科技有限公司   发布时间: 2018-03-30   查看次数:5806次

落地式外架基础做法

T1bEx_ByxT1RCvBVdK.jpg

外架水平防护

T1sEx_BydT1RCvBVdK.jpg

外架连墙杆设置

T14Ed_ByxT1RCvBVdK.jpg

外架剪刀撑

T15Cx_BydT1RCvBVdK.jpg

落地式脚手架实图

T1c.W_ByCT1RCvBVdK.jpg

外架上人施工通道

T1REZ_BXDT1RCvBVdK.jpg

落地式脚手架

?一、架体形象

1、立杆、水平杆、栏杆、横向斜撑为黄色,剪刀撑为黑黄色相间(每段长度为400mm);

2、小横杆 每个主节点处设小横杆一道,小横杆外伸长度不小于100mm,不大于150mm,小横杆距主节点距离为120mm(不得大于 150mm);

3、安全立网

?安全网强度符合规范要求,且张挂平整,并保持整洁无破损;

4、安全警示带

?1)、沿外架四周,每隔3层或10m设置20cm高安全警示带(兼挡脚板),第一道设于第2层水平封闭层处; ?2)、警示带安装于外架外立杆的内侧,采用18mm厚木胶合板。警示带外立面采用油漆刷成黑黄相间的色条,色条宽150mm;

5、横向斜撑

?1)、一字型、开口型双排脚手架的两端必须设置横向斜撑,中间每隔6跨设置一道; ?2)、高度在24m以下的封闭型双排脚手架可不设横向斜撑,高度在24m以上,除拐角应设置外,中间每隔6跨设置一道。 ?

?二、架体基础

?1、位于土层上的架体基础采用垫木枋或垫10#槽钢,垫层厚度≮100mm;

?2、位于结构楼板上的架体基础垫150×150的木胶合板(厚18mm)或者钢板(厚5mm)上焊接高100mm直径为55钢管。

?三、架体搭设要求

1、立杆

1)、立杆纵向间距1.5m,横向间距0.8~1.0m,步距1.76m;

2)、立杆各接头必须采用对接扣件对接,对接立柱上的对接扣件应交错布置,相邻两个立柱接头不应设在同步同跨 ?内,同步内隔一根立杆的两个相隔立柱接头在高度方向错开的距离不应小于600mm,各接头中心距主节点的距离不应大 ?于步距的1/3即600mm。

2、水平杆

1)、每一主节点处必须设置一根横向水平杆,采用直角扣件扣紧在立杆上,该杆的轴线偏离主节点的距离不应大于 ?150mm;

2)、纵向水平杆设置在立杆的内侧并采用直角扣件与立杆扣紧。纵向水平杆设于横向水平杆之上; ?

3、脚手板

1)、脚手板采用竹跳板铺设,每2步一铺设;

2)、脚手板应铺设严密、牢固、平稳,脚手板两端用10~14#铅丝固定牢靠。

4、连墙件

连墙件必须采用刚性构件,架体与建筑结构的连接采用刚性连接。连墙件设置按下表要求设置。

5、剪刀撑

高度≥24米的双排落地式外架、挑架和爬架均必须沿长度方向和高度方向连续设置剪刀撑,高度<24米的双排落地式外架两端分别自下至上设置剪刀撑一道,中间剪刀撑间距不大于15米,每道剪刀撑宽度不少于4跨6米,水平成角为 45度至60度,搭接长度不小于1米,三个旋转扣均布固定。

6、外架平网

外架必须在作业层的下一层设置安全平网,安全平网要挂至建筑结构边。

7、外架水平封闭层设置

外架每隔3层,且不大于10m设置一道水平封闭层。悬挑外架的第一道水平封闭层设于悬挑梁上;爬架的第一道水平封闭层设于底座上。落地式脚手架的的第一道水平封闭层设于建筑物第一层顶板标高位置处。

8、架体人行斜道

1)、人行斜道每跑宽度不得小于1m;

2)、当搭设运料斜道时,每跑宽度不得小于1.5m,坡度以1:6为宜。

3)、斜道两侧及平分处应设置护拦和挡脚板,人行通道板上钉防滑条,防滑条断面尺寸20×30mm,宜采用木质材料,间距不大于300mm。

4)、人行斜道应在脚手架外立杆设置,每6m高度设置连墙杆两根(即6×7.5m范围内设置连墙杆2根);

5)、斜道外立面设置连续剪刀撑。

9、外架防护棚

脚手架外临街、通道、交叉作业等位置需要搭设外架防护棚,防护棚搭设符合坠落半径的要求。 ?物体坠落半径规定

根据最新规范GB/T3068-2008要求 一级高处作业:作业高度(h)2-5m,坠落半径(r)为3m。 二级高处作业:作业高度(h)5-15m,坠落半径(r)为4m。 三级高处作业:作业高度(h)15-30m,坠落半径(r)为5m。 ?四级高处作业:作业高度(h)30m以上,坠落半径(r)为6m。 安全通道防护棚搭设长度与物体坠落半径成正比,在物体坠落半径内,通道防护棚必须覆盖物体坠落半径范围。

悬挑外架

1、架体形象 ?悬挑外架的警示带设于悬挑型钢的顶部,每悬挑一次设置一道;悬挑工字钢刷黑黄相间油漆,尺寸同警示带。其余同落地式脚手架。

2、架体悬挑层搭设

1)、一次悬挑脚手架高度不宜超过20m。

2)、型钢悬挑梁宜采用双轴对称截面的型钢。悬挑钢梁型号及锚固件应按设计确定,钢梁截面高度不应小于160mm。悬挑梁尾端应在两处及以上固定于钢筋混凝土梁板结构上。锚固型钢悬挑梁的U型钢筋拉环或锚固螺栓直径不宜小于16㎜;用于锚固的U型钢筋拉环或螺栓应采用冷弯成型。U型钢筋拉环、锚固螺栓与型钢间隙应用钢楔或硬木楔楔紧。每个型钢悬挑梁外端宜设置钢丝绳或钢拉杆与上一层建筑结构斜拉结。

钢丝绳、钢拉杆不参与悬挑钢梁受力计算;钢丝绳与建筑结构拉结的吊环应使用HPB235 级钢筋,其直径不宜小于20㎜。悬挑钢梁悬挑长度应按设计确定,固定段长度不应小于悬挑段长度的1.25 倍。 ?型钢悬挑梁固定端应采用2个(对)及以上U 型钢筋拉环或锚固螺栓与建筑结构梁板固定,U 型钢筋拉环或锚固螺栓应预埋至混凝土梁、板底层钢筋位置,并应与混凝土梁、板底层钢筋焊接或绑扎牢固。预埋件锚固长度应符合现行国家标准《混凝土结构设计规范》GB50010中钢筋锚固的规定。当型钢悬挑梁与建筑结构采用螺栓钢压板连接固定时,钢压板尺寸不应小于100mm×10mm(宽×厚);当采用螺栓角钢压板连接时,角钢的规格不应小于63mm×63mm×6mm。 ?型钢悬挑梁悬挑端应设置能使脚手架立杆与钢梁可靠固定的定位点,定位点离悬挑梁端部不应小于100mm。锚固位置设置在楼板上时,楼板的厚度不宜小于120mm。如果楼板的厚度小于120mm 应采取加固措施。

3)、杆件搭设及防护同前述落地式外架。

装饰阶段外架防护及悬挑外架结构

T1SCD_ByxT1RCvBVdK.jpg

悬挑外架结构

T18cJ_ByCT1RCvBVdK.jpg

悬挑外架工字钢布置及卸荷钢丝绳

T1w.W_ByKT1RCvBVdK.jpg

卸荷钢丝绳

T1rcE_ByCT1RCvBVdK.jpg

外架悬挑层防护

T1WoW_ByCT1RCvBVdK.jpg

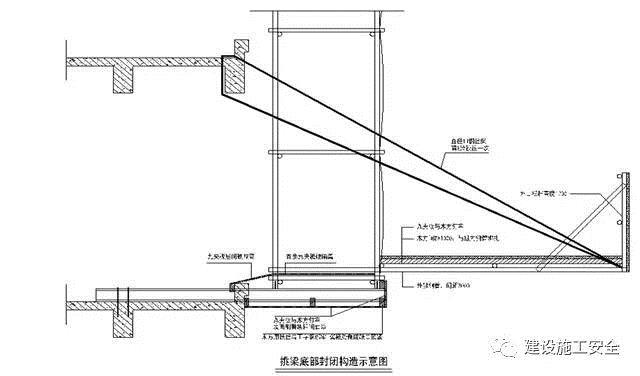
外架悬挑层封闭构造图

T1aEh_BXKT1RCvBVdK.jpg

外架悬挑层封闭

T1zoW_ByCT1RCvBVdK.jpg
T1ioL_ByKT1RCvBVdK.jpg

主体施工外架水平防护

?主体施工阶段外架水平防护:

①主体结构施工阶段的外脚手架每层均满铺脚手板,脚手板铺至楼面边缘,把外架与建筑物之间的空隙封闭;

②施工层、拆模层、第二层楼面应满铺脚手板,脚手板铺至楼面边缘。从二楼面起,每隔12m设置一道硬质材料的隔断防护,并在两层硬质防护中间部位张挂安全平网。非作业层楼面临边设防护栏;

③脚手板铺设时严禁出现探头板。脚手板端头应用φ1.2mm锌铁丝固定在小横杆上。

装修施工阶段外架水平防护:

①作业层应满铺脚手板,脚手板铺至楼面边缘;

②从二楼面起,竖向每隔12m设置一道硬质材料的隔断防护,并在两层硬质防护中间部位张挂安全平网。非作业层楼

面临边设防护栏;

③脚手板铺设时严禁出现探头板。脚手板端头应用φ1.2mm镀锌铁丝固定在小横杆上。

外架作业层水平防护

T1PoV_BmdT1RCvBVdK.jpg

安全网挂设绑扎

T1tVd_BXDT1RCvBVdK.jpg

外架防护棚

T1qED_ByxT1RCvBVdK.jpg

外架防护棚构造图

T1K.A_ByxT1RCvBVdK.jpg
T1qCY_ByxT1RCvBVdK.jpg
T1CVK_ByxT1RCvBVdK.jpg
T1nZh_ByDT1RCvBVdK.jpg
T1bZx_ByxT1RCvBVdK.jpg
T1QEx_BydT1RCvBVdK.jpg
T1yEd_ByxT1RCvBVdK.jpg
T1TZx_BydT1RCvBVdK.jpg
T1RZZ_ByxT1RCvBVdK.jpg